• Usine d'engrenage en éco-conception

  • Usine d'engrenage en éco-conception avec la Rolling Deign House

le projet

Rencontré pour la fabrication de la Rolling Design House (notre kiosque mobile en aluminium), Arnaud Chandioux PDG des entreprises du même nom, nous a confié la conception du nouveau bâtiment pour ses usines d’engrenages à Moulins.
Nous avons été très touchés par le discours de notre maître d’ouvrage pour que le confort des employés et l’écologie soient au cœur de son projet. Nous avons décidé de relever le défi de conception d’une usine écoresponsable avec des zones de travail éclairées naturellement, diminuant les nuisances sonores, et efficace thermiquement, et des espaces de repos et de convivialité (vestiaires, réfectoire, etc.) particulièrement soignés.
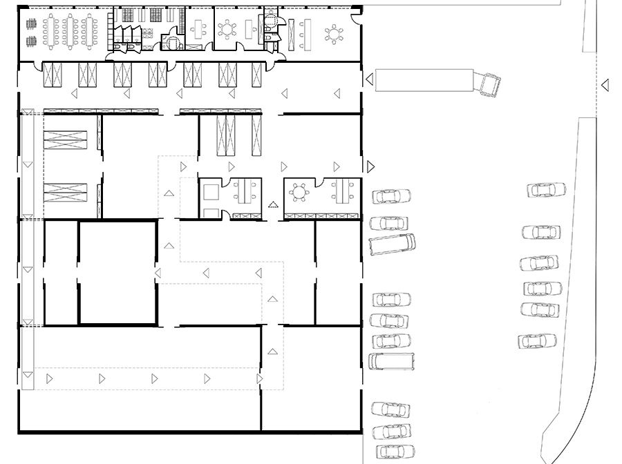
Le plan de l’édifice s’organise selon le process des engrenages usinés : déchargement, stockage, tournage, fraisage, taillage, traitement, thermique, rectification, contrôle et, emballage. Un tapis roulant permettant le transport des pièces pouvant être lourdes et volumineuses se déploie comme un ruban. Nous avons minimisé la manutention en évitant les allers-retours et optimisé les déplacements avec des machines de levage.
En coupe, les toits en sheds prennent la lumière au Nord et les versants Sud sont recouverts de panneaux photovoltaïques alimentant le bâtiment. Au niveau de la structure une ventilation naturelle renforcée évacue la chaleur produite par les machines en été et la conserve en hiver.
Entre modernité et tradition la façade au dessin épuré est bardée en bois, la toiture en zinc à joint debout se retourne par endroit pour souligner les différents volumes constitutifs de l’édifice. Enfin de larges portes à galandage en inox et des baies vitrées réfléchissent le paysage alentour.
Nous avons particulièrement soigné le traitement des sols extérieurs pour les rendre perméables tout en permettre la circulation de véhicules lourds : un pavage de dalles minérales et des zones enherbées et plantées.

Locaux du personnel | Accueil
puis en suivant les flèches
Déchargement > Stockage > Tournage > Fraisage > Taillage > Traitement thermique > Rectification > Contrôle > Emballage

Construction - Paysage | 1 900 m² | 2 M€ | Lotissement Industriel, 13 Zone Industrielle Le Tureau, Lusigny | établissements Chandioux, maître d'ouvrage
© METEK, perspectives et plans
projet suivant >