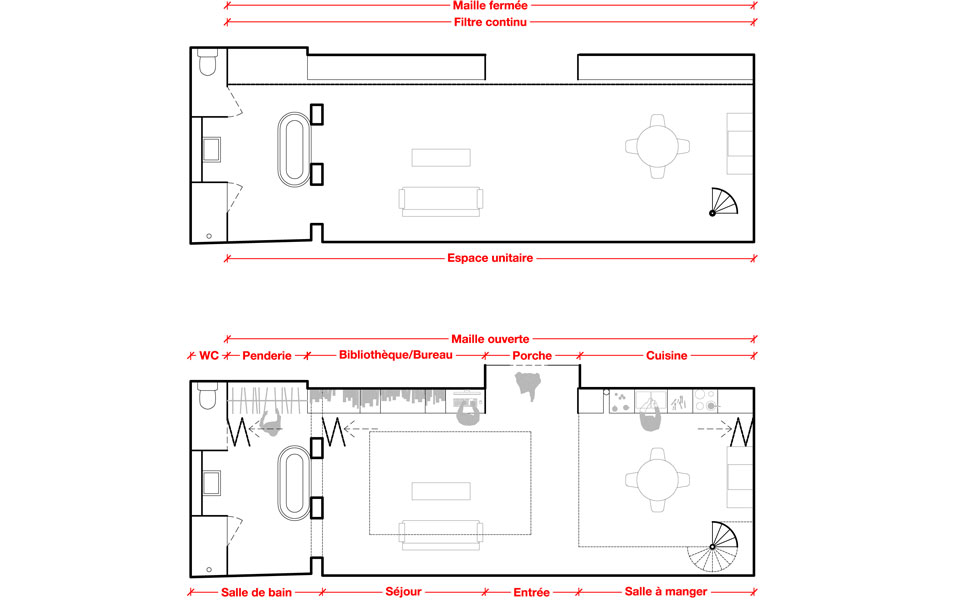
Le travail des matériaux, textures et calepinage a permis d'unifier et de distinguer les espaces dans ce petit appartement | projet MK/90-AS
Dans la configuration de nuit la chambre se ferme et la cuisine et le séjour sont indépendant | projet MK/90-AS
Dans la configuration de jour la chambre s'ouvre et les espaces se mettent en relation | projet MK/90-AS
Séquence d'entrée et cuisine sont créés par un meuble îlot | projet MK/03-VA
Vues diverses depuis le séjour, sur la villa, le ciel, la cuisine et le balcon | projet MK/03-VVA
La maison est grandement ouverte et multiplie les points de vues sur l'extérieur tout en gardant sont intimité de l'extérieur | projet MK/03-VVA
Bien qu'orientée plein nord la construction laisse entrer les rayons du soleil par des verrières et des fenêtres ingénieusement placées | projet MK/03-VVA
La réverbération sur les extérieurs blancs augmentent la luminosité des espaces | projet MK/03-VVA
La Rolling' kiosque de médiation culturelle vélo-mobile | projet La Rolling'
Les 6 logements ont été dessinés pour devenir de véritables maisons avec jardins | projet MK/05-VI
L'ouverture d'un espace double hauteur permet de nouvelles relations entre les espaces et vers le jardin | projet MK/07-PE
La loge est point de repère pour les écoliers et un point de contrôle pour la gardienne | projet MK/08-RI
La façade reflète le plan dessiné dans la continuité du contexte tout en lanières | projet MK/10-CA
Le design est travaillé pour profiter au maximum des ouvertures présentes et de la profondeur de l'espace | projet MK/22-SP
Les fonctions et les espaces se définissent selon les heures et l'ouverture d'une bande servante derrière une maille métallique | projet MK/22-SP
Des plateaux s'organisent à différentes hauteurs selon les usages et les vues | projet MK/36-FM
Réorientation du site vers la mairie par les ouvertures, les fonctions et les espaces extérieurs | projet MK/40-GS
Intégration du parking et des cheminement dans une trame rappelant l'urbanisme local | projet MK/40-GS
La nouvelle organisation a permis la création d'une vraie entrée et la suppression des couloirs. Des seuils-bibliothèques donnent accès aux espaces de vie | projet MK/52-BO
Une galerie d'exposition en continuité de la rue est abritée par la salle de spectacles au dessus | projet MK/76-HC
La maison est composée autour du jardin qui en devient la pièce principale en été | projet MK/82-VI
L'office du tourisme est conçu pour les touristes mais aussi le personnel et les citoyens | projet MK/83-FR
L'implantation en coupe c'est faite selon l'urbanisme et le paysage environnant | projet MK/83-FR
Les 4 façades regardent 4 espaces publiques penser selon les accès & départs et le contexte | projet MK/83-FR
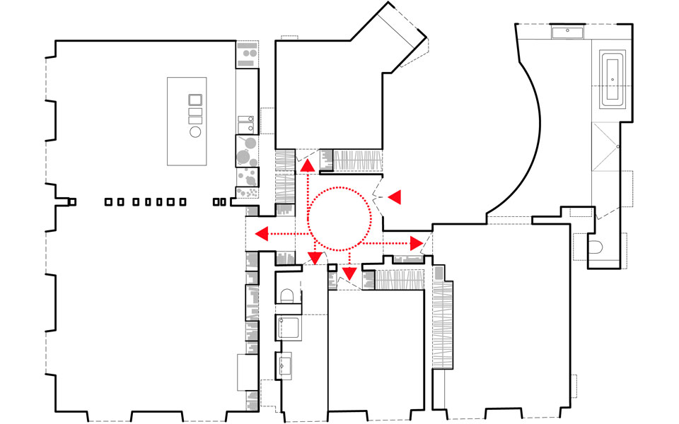
Un espace de circulation théâtral pour une chanteuse et des chambres isolées | projet MK/16-DM
La chambre en suspension permet de conserver la perception de l'ensemble du volume | projet MK/94-RO
Deux planchers vitrés permettent d'appréhender la monumentale bibliothèque-escalier dans toute sa hauteur | projet MK/97-JT
Un bardage en cuivre perforé devant les loggias permet de protéger d'une trop forte exposition les logements orientés Sud et de ramener de la luminosité pour les logements au Nord | projet MK/168-CR
L'installation d'un sol mou, d'un nuage de fumé, de transats et d'un mobile dans une cour de Montpellier la met en valeur et invite à la redécouvrir | projet MK/FAV-08
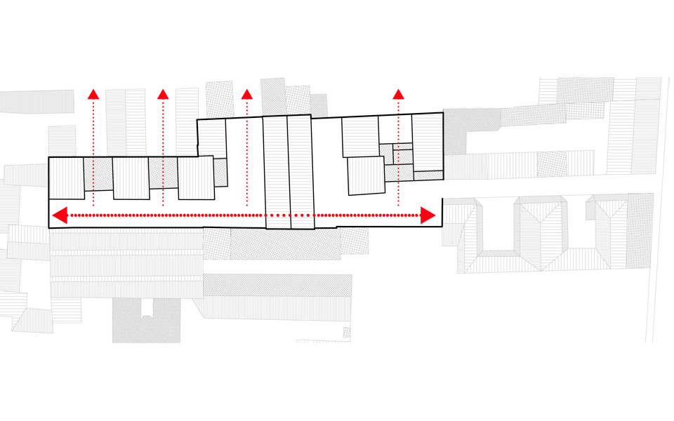
Les vues traversent de part en part la maison en passant par les exterieurs et les intérieurs | projet MK/05-GU