• vue aerienne du 168 rue de Crimée, à paris 18 | 31 logements sociaux | toiture et façades en cuivre doré

    168-CR

  • cour parisienne contemporaine, sous bassement en briques noires moulées main et étages en cuivre à joints debouts

    168-CR

  • cour pavée, immeubles de logemnts neufs avec coursives et balcons, halle classée restaurée

    168-CR

  • bâtiment aux espaces partagés, escaliers exterieurs, coursives et balcons loggias derrière une maille de cuivre

    168-CR

  • passage créé entre deux cours par un édifice noir et doré en pivot

    168-CR

  • éclairage intégré de mise en valeur et de balisage pour des logements sociaux

    168-CR

  • halle patrimoniale restaurée | cour intérieure partagé avec façade intérieures et escalier suspendu

    168-CR

  • bâtiment faubourien sur restrucuré en lisaison par les balcons des nouvelles constructions

    168-CR

  • vis-à-vis dans la cour de constructions aux échelles du site

    168-CR

  • détail de toiture et façade en cuivre doré à joints debouts avec chéneau jonction avec un mur noir en enduit ventilé

    168-CR

  • coursive, loggia, balcon et terrasses, entre ouverture et intimité

    168-CR

  • terrasse solarium en liaison direct avec le séjour

    168-CR

  • séjour clair ouvert sur un balcon lumineux

    168-CR

le projet

L’intention architecturale est avant tout sociale : réinventer une cour urbaine partagée par tous les habitants tout en individualisant chaque pas de porte. Créer des circulations qui favorisent les rencontres entre voisins, qui relient -à l’image des habitants- des bâtiments d’origines et de natures différentes. L’implantation des bâtiments, la fragmentation du plan masse permet des percées visuelles avec les cours des parcelles voisines. La continuité physique est même réelle avec la parcelle du 170 rue de Crimée qui appartient au même bailleur. Les habitants bénéficient ainsi des deux cours réunies qui viennent former un ensemble continu avec une troisième cour, celle-ci couverte par une verrière, dans l’ancienne imprimerie. Les habitants des deux parcelles partagent également les locaux communs (vélos-poussettes, tri sélectif).

Les bâtiments neufs sont adossés scrupuleusement aux héberges mitoyennes à l’exception d’une partie du bâtiment central, pivot qui se retourne sur la cour voisine. Les toitures ont un lien de parenté à la fois formelle et technique avec les toitures voisines. Le matériau « cuivre gold » (alliage de cuivre et d’aluminium) en version pleine et perforée ainsi que les grandes tropéziennes inscrivent ces nouveaux bâtiments dans leur époque. Les couvertures en cuivre gold sont libres de tout édicule donnant une drôle impression de maquette : toute la ventilation du projet est enterrée et les panneaux photovoltaïques et les panneaux solaires sont installés sur les toitures des bâtiments réhabilités. La pose de la couverture à joints debout reprend la pose traditionnelle du zinc parisien.

La cour centrale est pensée comme une petite rue piétonne qui se prolonge à l’intérieur de l’ancienne imprimerie par les grandes portes d’entrée. Cette petite rue pavée, qui reprend la typologie des villas parisiennes, dessert l’ensemble des bâtiments à rez-de-chaussée. Entre les bâtiments on trouve un système de terrasses, loggias, coursives, balcons en platelage bois. Le changement de matériau marque un premier seuil : un premier pas avant de rentrer chez soi. Les entrées des appartements sont en binôme : deux entrées par palier. Pas besoin d’être dans le sud de la France pour pouvoir s’assoir sur quelques marches devant chez soi ! Les occasions de s’assoir à l'extérieur ne manquent pas : deux bancs intégrés aux escaliers sont également ouverts à tous.
le 168 rue de Crimée dans le 18 arrondissement de Paris
schémas d'intégration des construction selon le contexte et les circulations
plan de masses par photographie aérienne des 5 édifices du 168 rue de Crimée
coupe façade longitudinale, continuité de circulation basses rue porche cour et cour intérieure et haute par les coursives
plans d'étages
coupes transverales et longitudinales
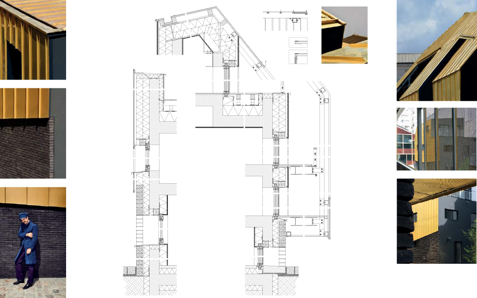
fiche de détail du sol à la toiture sur le cuivre, la brique, l'enduit et les ouvertures
terrasses et solariums multiples au 168 rue de Crimée
loggias, balcons et coursives variées avec vue
intérieurs contemporains de logemnts sociaux et ateliers d'artistes à Paris XVIII
Construction - Restructuration | 1060 m² restructuration+ 1100m² neuf |5,2 M€ | livré Juin 2017 | Paris XIX |
Elogie - SIEMP | EPBV économiste , BATISERF Ingénierie structure, NICOLAS Ingénierie fluides et thermique, FASEO Electricité| METEK
Didier Glais, couvreur | EPBV, économiste | Nicolas Ingénierie, fluides et thermique | BATISERF, Ingénierie structure | FASEO, Electricité | METEK, architecte
© Irina production, photographie (1 dans l'ordre) | © Didier Boy de la Tour, photographies (4, 6 à 8, 12) | © Manuel Braun, photographies (9 et 11)
© Sophie Comtet Kouyaté, vidéo | © METEK, plans, schémas, photographies (2, 3, 5, 10, 11, et 13)
livre | Villa Crimée de Célia Houdart, édition P.O.L
Roman P.O.L

Novembre 2018

Les 212 fragments qui composent ce livre répondent aux 212 fenêtres des bâtiments du 168, rue de Crimée, dans le dix-neuvième arrondissement de Paris qui, d'un geste un peu miraculeux, réunit 31 logements sociaux dont 7 ateliers d'artistes, autour d'une cour pavée.
Points de vue sur une architecture contemporaine (Agence Metek-Sarah Bitter avec Christophe Demantké) et sur la vie rêvée de ses futurs habitants, en même temps que coups de sonde dans le passé d'un quartier parisien.
Série de visions, de fictions : un labyrinthe de traits sur un plan d'architecte, un toit-manteau de cuivre gold. Un couple qui dort à la belle étoile sur une loggia, le piano d'Anton Tchekhov dans sa Datcha Blanche.

On pense bien sûr à "La Vie mode d'emploi" de Georges Perec, tentative d'inventaire et d'épuisement de la vie d'un immeuble parisien, avec ses vies intriquées d'habitants et son plan en coupe du 11, de la rue Simon-Crubellier. On peut même dire que "Villa Crimée" s'attache à peu près aux mêmes principes, mais sous un format miniature.
Avec "Villa Crimée", tout en poursuivant la quête et l’esthétique à l’œuvre dans ses romans, entre réalisme et somnambulisme léger, Célia Houdart offre aussi son premier texte écrit à la première personne. Ses déambulations, rêveries, réflexions, réminiscences littéraires, cinématographiques ou musicales, ont un caractère souvent intime.
 
Ce livre est né d'une commande de Sarah Bitter, architecte (agence Metek). Des extraits du texte composent partiellement la voix off de "Crimée enchantée. Histoire(s) d'une architecture", un film de Sophie Comtet Kouyaté sur une idée originale de Sarah Bitter.

Célia Houdart
Crimée enchantée, histoire(s) d'une architecture
Un film de Sophie Comtet Kouyaté
Sur une idée originale de Sarah Bitter
Durée du film 30’
Une production Metek © 2017

Un philosophe, une danseuse, un écrivain, des acrobates dialoguent, chacun à leur manière, avec l'architecture d'un ensemble de logements sociaux en construction à Paris. La réalisatrice capte et enregistre leurs paroles, gestes, textes, mouvements pour composer une conversation polyphonique. Un voyage poétique où se mêlent scènes de fiction, réminiscences du cinéma réaliste italien, analyses philosophiques, contemplation futuriste et performance artistique, au cœur d'un lieu de vie en devenir.

Voir le site du film
Télécharger le dossier de présentation du film
projet suivant >